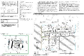
Bloom Medical - Delray Beach, Florida

This 6,400 square foot interior remodel includes demolition and
new construction within an existing commercial building shell.  
The project scope required a contemporary design and
renovation for 11 examination rooms, an x-ray room, 3 offices
and a reception area with an adjacent waiting room.  

The design was completed by id&design, inc. providing space
planning, color pallet for floors, walls and ceilings, millwork and
lighting design.  GTP Architecture, Inc. is the Architect of Record
for the project.
Ongoing Projects